Phone
WhatsApp
Email
Box type substation Compact Substations

Compact Substations

Rated voltage480v-36kv
Rated capacity50-3000kva
Application scenariosOutdoor/Indoor
Certifications & StandardsIEC 62271‑202, IEEE C57.12.00, IEEE C57.12.28

Compact Substations

Compact substations, also known as CSS/PSS/USS, are designed to provide safe, reliable, compact, and economical power distribution solutions for power companies, multi-family residences, towns, hospitals, software parks, residential communities, shopping malls, government agencies, etc., meeting the diverse needs of all users and can be customized to meet specific customer power requirements.

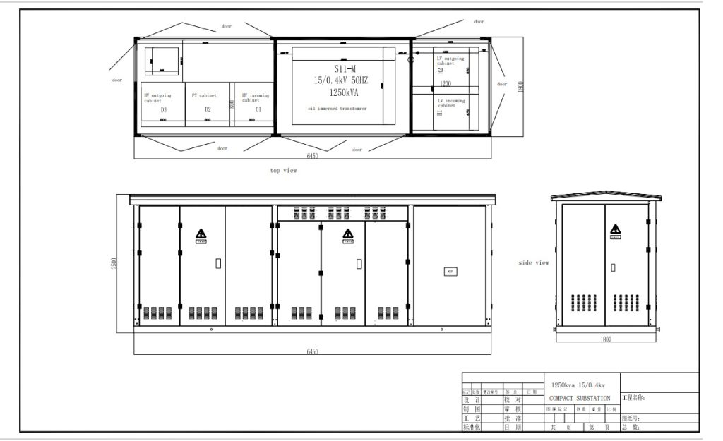
Compact substations,It combines high-voltage switchgear, distribution transformers and low-voltage power distribution devices into a single factory prefabricated indoor and outdoor compact power distribution equipment according to a certain wiring scheme, which organically combines functions such as transformer step-down and low-voltage power distribution. Installed in a moisture-proof, rust-proof, dust-proof, rat-proof, fire-proof, anti-theft, heat-insulation, fully-enclosed, and movable steel structure box. Box-type substations are divided into European-style box-type substations, American-type box-type substations, and underground box-type substations.

Compact substations are widely used in power distribution in a modern and stylish manner, offering numerous benefits to users by saving significant space, and are a more reliable power distribution solution compared to traditional overhead line transformers mounted on H-beams. As the name suggests, compact substations are very compact, saving at least 75% of the space required for traditional substations.

  • Application: Outdoor/Indoor
  • Voltage clas: upto 36 KV class
  • Maximum Power rating : 3 MVA
  • Transformer type : Dry type/ Oil filled with off circuit taps (or) Onload tap changer
  • HV Side confirguartions options : RMU/VCB/AIS with or without Metering /FRTO
  • LV side configuration options : ACB/MCCB/HRC Fuses with or without APFC panel
  • IP Protection: IP 54 for HV/LV compartment, IP 23 for Transformer

Compact Substations Technical Specifications

Related Content

Case

 

Request for Question