Copyright © 2022 ZTELEC Yuguang ElectricTechnology(Henan)CO.,Ltd. All rights reserved.
| Rated voltage | 10kV/20kV/35kV |
|---|---|
| Rated capacity | 75kVA-5000kVA |
| Application scenarios | Suitable for urban and rural power grid construction and transformation |
| Certifications & Standards | TÜV -issued CE • CB IEC EN ISO 9001• 14001• 45001 |
Prefabricated Substation Box-type substations, also known as prefabricated substations, provide power directly to users. It is a prefabricated indoor and outdoor compact power distribution equipment that integrates high-voltage switchgear (high-voltage room), distribution transformer (transformer room)and low-voltage power distribution device (low-voltage room)according to a certain wiring scheme. The functions of voltage reduction and low-voltage power distribution are organically combined, and the substation is installed in a moisture-proof, dust-proof, fire-proof, fully enclosed, movable steel structure box, especially suitable for urban and rural power grid construction and reconstruction.
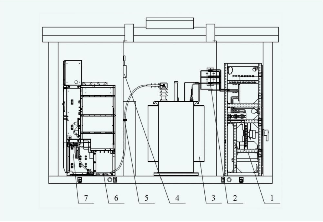
The high-voltage room is the power supply side, generally 35kV, 20kV or 10kV incoming lines, including high-voltage busbars, circuit breakers or fuses, voltage transformers, arresters, etc. The transformer is located in the transformer room and it is the main equipment of the box-type substation. The transformer room includes transformers, which is the main equipment of substation. The low-voltage room includes low-voltage busbars, low-voltage circuit breakers, metering devices, etc. The lines are led out from the low-voltage busbars to supply power to users.
Prefabricated Substation are divided into “triangle”and “rectangular”type according to the structure layout; “terminal type”box-type substations and “ring network”box-type substations according to the high-voltage power supply mode. Bothsides of the bottom of the box are equipped with push-pull lifting devices, which can facilitate lifting, transportation and installation. The high and low voltage room can adopt standard structureor screen-mounted or framed structure. The former structure is highly complete and the latter has a compact overall size.
GB 1094. 1-2013:Power transformers Part 1:General
GB 1094. 2-2013:Power transformers Part 2:Temperature rise GB 1094. 3-2003:Power transformers -Part 3:Insulation levels, insulation tests and air gaps for external insulation
GB 3906-2006:3. 6kV-40. 5kV AC metal-enclosed switchgear and controls GB/T 11022-2011:Common technical conditions for high-voltage switchgear and controls standards
GB 7251. 1-2013:Low voltage packages and controls Part 1:General GB 14048. 1-2006:Low-voltage switchgear and controls Part 1:General GB/T17467-2010:HV/LV prefabricated substations
+Small size, small footprint, movable at any time according to demand, and convenient transportation and installation;
+ Reasonable structure distribution, can be made into “triangle”and “rectangular”type according to demand;
+ Each functional room is independent of each other, and maintenance and replacement of parts are convenient and fast;
+ The shell is naturally ventilated, which can reduce the heat during operation;
+ Can be used in various environments with high protection level.
a The altitude is below 4000m;
b Ambient temperature -45℃~+45℃;
C Relative humidity:the daily average humidity is not more than 95%, and the monthly average is not more than 90%.
Note:If it is out of the above conditions, you need to negotiate with the manufacturer.
Primary single line diagram of ring network substation Primary one-line diagram of terminal type substation



1. Low voltage switchgear 3. Transformer 5. Cable clamp
2. Insulated busbar frame 4. Box-type transformer shell 6. 10kV high voltage cable
7. High voltage switchgear
05-05 2025
04-18 2025
09-18 2024
07-13 2024
Copyright © 2022 ZTELEC Yuguang ElectricTechnology(Henan)CO.,Ltd. All rights reserved.